Espacio flexible diseñado para empresas innovadoras
Ideal para integrar oficinas, laboratorios con áreas de producción liviana y almacenamiento en una misma ubicación, con posibilidad de operación 24/7, en un entorno seguro, moderno y con control de accesos centralizado.
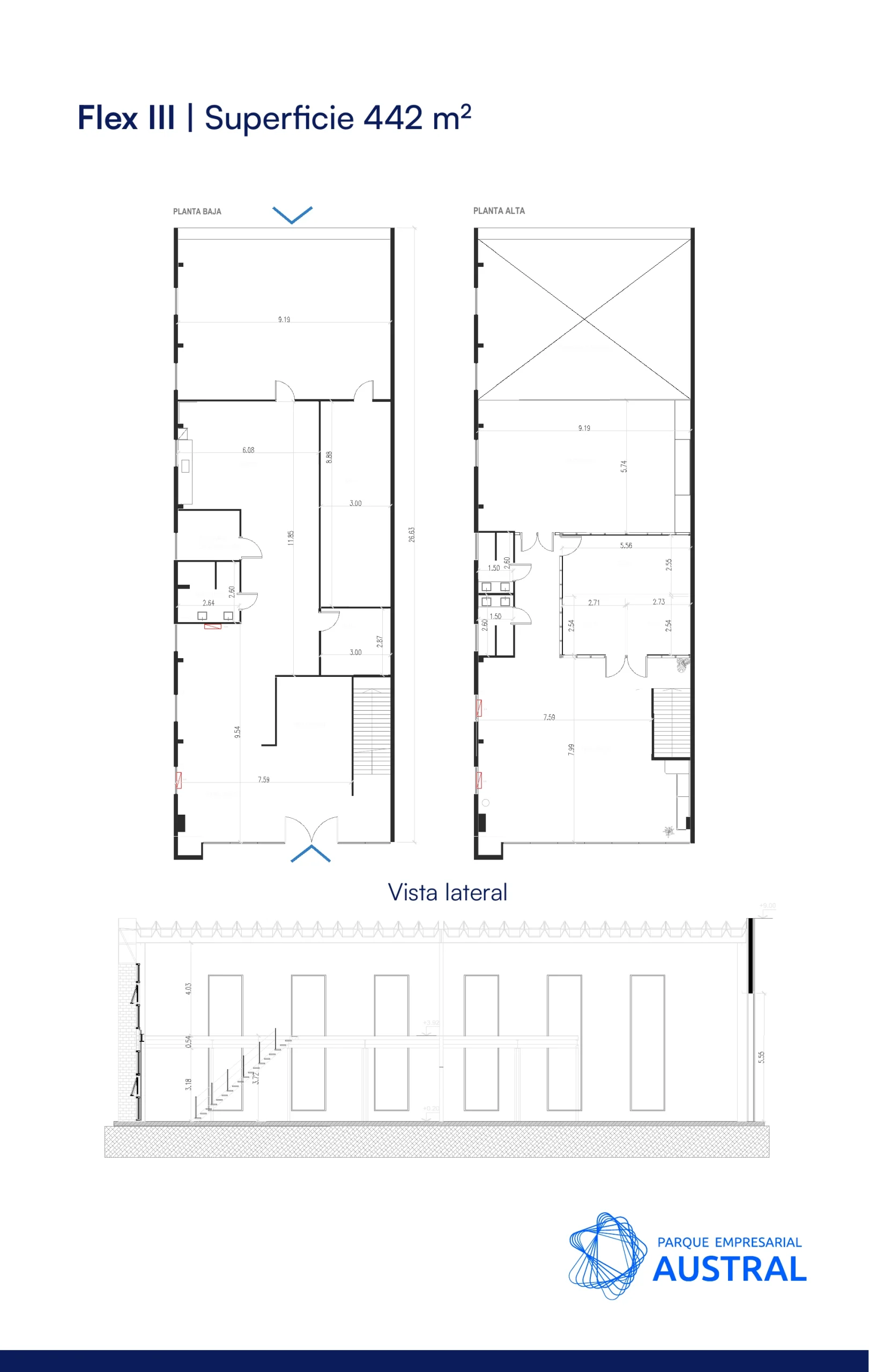
El módulo cuenta con 442 m² totales, distribuidos en planta baja y entrepiso, lo que permite una organización eficiente y adaptable a distintos modelos de trabajo.
Dispone de dos accesos independientes, uno principal y otro operativo, orientados a distintas arterias internas del parque, facilitando la logística, la circulación y la separación de flujos. Una solución integral que optimiza procesos, potencia la eficiencia y se inserta en un ecosistema empresarial de primer nivel.
Distribución de superficie:
Características destacadas:
FlexSpace III es un edificio de 3.400 m², distribuido en 8 módulos de doble altura con entrepiso. Presenta un frente corporativo vidriado, con sistema DVH y estructura de aluminio negro, combinado con ladrillo a la vista, que aporta una imagen moderna. El sistema de curtainwall garantiza excelente iluminación natural y vistas abiertas al parque.
El contrafrente del edificio conecta directamente con un corredor logístico, que facilita las operaciones de carga y descarga. Dispone de cortinas metálicas motorizadas optimizando la logística y la circulación.
La cubierta de la nave está conformada por paneles térmicos estructurales, que contribuyen al confort interior y a la eficiencia energética.
El edificio dispone además de estacionamiento propio, brindando comodidad tanto para usuarios como para visitantes.
Lorem ipsum dolor sit amet, consectetur adipiscing elit. Ut elit tellus, luctus nec ullamcorper mattis, pulvinar dapibus leo.
Lorem ipsum dolor sit amet, consectetur adipiscing elit. Ut elit tellus, luctus nec ullamcorper mattis, pulvinar dapibus leo.
Lorem ipsum dolor sit amet, consectetur adipiscing elit. Ut elit tellus, luctus nec ullamcorper mattis, pulvinar dapibus leo.
El Parque Empresarial Austral (PEA) está estratégicamente ubicado en el Campus de la Universidad Austral, en Pilar. A sólo 40 km de la Ciudad Autónoma de Buenos Aires, en el corredor norte, una de las áreas de mayor crecimiento y desarrollo corporativo de la Argentina. Su localización ofrece accesibilidad directa a la Autopista Panamericana (Ruta 8) y ágil conexión con aeropuertos nacionales e internacionales, puertos y los principales corredores logísticos del Mercosur. Con más de 450 mil habitantes, 600 industrias y 5 universidades en Pilar, PEA se encuentra rodeado de infraestructura de servicios, áreas residenciales y espacios comerciales que garantizan un entorno de alta calidad para empresas, colaboradores y visitantes.
Con 20 años de trayectoria, Parque Empresarial Austral es un ecosistema único en Argentina que integra empresas, academia, tecnología y salud en un mismo lugar. La articulación con la Universidad Austral, el IAE Business School y el Hospital Universitario Austral —referentes en formación académica, management e innovación en salud— y la cercanía a institutos, centros de investigación y laboratorios de última generación brindan a las empresas el entorno ideal para innovar, crecer y proyectarse globalmente.
En el Parque Empresarial Austral conviven más de 70 pymes y startups innovadoras con multinacionales de referencia en salud y tecnología, como Salesforce, AstraZeneca, Kuka Robotics, Neogen y Big Dutchman, entre otras, conformando un ecosistema dinámico y colaborativo.
Las empresas radicadas en el Parque Empresarial Austral acceden a una amplia red de vinculación con organismos internacionales, cámaras e instituciones de primer nivel, así como con más de 350 inversores ángeles y privados, generando oportunidades de colaboración e innovación a escala global. Entre los principales aliados se destacan:
El PEA impulsa una política integral de ESG que combina gestión ambiental, compromiso social y gobernanza responsable. Somos el primer parque del país en operar con una matriz energética 100% renovable y en medir nuestra huella de carbono bajo la norma ISO 14064. Con iniciativas de eficiencia energética, economía circular, reforestación y programas de impacto comunitario, el PEA ofrece a las empresas un entorno alineado con los más altos estándares globales de sostenibilidad.
PEA se nutre del talento de la Universidad Austral, el IAE Business School y el Hospital Universitario Austral, con más de 11.000 estudiantes activos, una red de 35.000 graduados en 55 países y un cuerpo de investigadores de excelencia internacional. A esto se suma el dinamismo de Pilar, una ciudad en expansión con un ecosistema productivo y educativo que potencia la atracción y retención de profesionales altamente calificados.
Es un actor clave en la generación de proyectos innovadores y en el impulso al espíritu emprendedor. Con base en el IAE Business School y reconocido como referente en América Latina, el Centro acompaña a startups y emprendedores en todas sus etapas —desde la formación y el desarrollo de ideas hasta la aceleración y el acceso a redes de capital— aportando metodologías, mentorías y vínculos estratégicos.
Acompañamos a empresas y startups en todo el proceso de instalación, con soporte en gestiones municipales, asesoramiento legal y administrativo, habilitaciones y normativas. Ofrecemos infraestructura de primer nivel, seguridad y operatividad 24 h/365 días, conectividad de alta velocidad, mantenimiento de áreas comunes, acondicionamiento de espacios y acceso a proveedores seleccionados.
Ofrecemos espacios en alquiler que se adaptan a distintos usos y estadios de desarrollo de las empresas, con superficies de entre 10 y 3.000 m2. Desde coworking tradicional y un innovador coworking Bio, diseñado para proyectos de base científica y tecnológica, hasta oficinas llave en mano, laboratorios, edificios industriales y terrenos para desarrollos a medida. Esta flexibilidad permite que multinacionales, pymes y startups crezcan y se expandan dentro del Campus sin necesidad de relocalizarse, eligiendo siempre la solución más adecuada para cada etapa.
En un campus de 26 hectáreas arboladas, Parque Empresarial Austral combina infraestructura de primer nivel con servicios diseñados para potenciar la productividad y el bienestar de los equipos. Cuenta con red de telecomunicaciones y conectividad de alta calidad, seguridad y operatividad 24/7, acceso biométrico y amplios estacionamientos. Su entorno incluye senderos saludables, plazas con wi-fi, espacios de entrenamiento al aire libre, ping pong y cancha de fútbol, además de restaurante, grill point, salas de reuniones y eventos, y jardín de infantes.
*Metodología de medición de superficies: Building Owners and Managers Association (BOMA). **Los contratos se firman en pesos a tipo de cambio vendedor BNA








